jbo¾º²©

Èù¤ÒµÓàÈÈ·¢¹â·¢ÈÈ Èù¤ÒµÓàÈÈ·¢¹â·¢ÈÈ

jbo¾º²©ÓàÈȽÓÄɹøÂ¯

Zheng boiler waste heat recovery boiler

jbo¾º²©ÓàÈȽÓÄÉϵͳ jbo¾º²©ÓàÈȽÓÄÉϵͳ
ÐÐҵְλңңÁìÏÈ£º£º£º
º£ÄÚÓàÈȹøÂ¯ÐÐÒµÊ×¼ÒÈý·ÏÓàÈȹøÂ¯¡¢Ì¼ËØÓàÈȹøÂ¯µÈ¯ÐÍÊг¡Õ¼ÓÐÂʵִï70%ÒÔÉϵÄÊÖÒÕ¢¶ÏÐÍÆóÒµ¡£
׿ԽµÄÆ·ÅÆ×ÅÃû¶È£º£º£º
jbo¾º²©ÔÚÓàÈȽÓÄÉÁìÓòÉî¸ûÈýÊ®ÓàÔØ£¬£¬£¬¾ßÓн¹µãµÄÊÖÒÕ¾ºÕùÁ¦£¬£¬£¬½¨ÉèÁËÓÅÒìµÄÊг¡»ù´¡£¬£¬£¬jbo¾º²©Æ·ÅÆÆÕ±é»ñµÃ¿Í»§µÄÈϿɡ£
ÕÆÎÕÓàÈȽÓÄɽ¹µã¿Æ¼¼£º£º£º
ÒÔÑз¢Á¢Òì´òÌìÏ£¬£¬£¬jbo¾º²©¶ÀÍÌ÷¡Í·£¬£¬£¬¼«´óµØÓ°ÏìÁËÖйúÓàÈȽÓÄɹøÂ¯Êг¡µÄÃûÌÃ---½öÓàÈȹøÂ¯ÏµÁоÍÓµÓÐÈýÊ®ÓàÏî¹ú¼ÒÊÚȨרÀû¡£ÏÖÔÚ£¬£¬£¬jbo¾º²©ÊÖÒÕÑз¢ÖÐÐÄ6ÏîÓàÈÈÁ¢ÒìÊÖÒÕÕýÔÚÉêÇëרÀûÊÚȨ¡£
ÍêÉÆµÄ×°±¸ÖÆÔìϵͳ£º£º£º
¹«Ë¾¾ßÓÐÉÏǧÌ×ÓàÈȹøÂ¯×¨ÒµµÄÉú²ú×°±¸ÒÔ¼°³ÉÊìµÄÉú²ú¹¤ÒÕ£¬£¬£¬´ÓÉú²ú×éÖ¯ºÍÉú²ú¹¤ÒÕÉ϶ԹøÂ¯¼Ó¹¤ÖÆÔìÖÊÁ¿¸øÓè³ä·Ö°ü¹Ü¡£
Ì¼ËØÐÐÒµ

Ì¼ËØÐÐÒµ

²£Á§ÐÐÒµ

²£Á§ÐÐÒµ

»¯¹¤ÐÐÒµ

»¯¹¤ÐÐÒµ

½¹»¯ÐÐÒµ

½¹»¯ÐÐÒµ

Σ·ÏÐÐÒµ

Σ·ÏÐÐÒµ

¸ÖÌúÐÐÒµ

¸ÖÌúÐÐÒµ

ºã¾ÃÒÔÀ´£¬£¬£¬ÎÒ¹úÌ¼ËØ¡¢²£Á§¡¢½¹»¯¡¢»¯¹¤¡¢¸ÖÌú¡¢Ë®Äà¡¢½¨²Ä¡¢·ÄÖ¯µÈÐÐÒµÓàÄÜûÓлñµÃ³ä·ÖʹÓ㬣¬£¬Èç¸ÖÌúÆóÒµµÄ¸ßÂ¯ÃºÆø¡¢×ªÂ¯Æø£¬£¬£¬ÃºÌ¿ÆóÒµµÄ½¹Â¯ÃºÆø£¬£¬£¬ÖÖÖÖҤ¯µÄ¸ßÎÂÑÌÆø£¬£¬£¬»¯¹¤ÆóÒµµÄ»¯Ñ§·´Ó³ÈÈÄÜ£¬£¬£¬Ë®ÄàÆóҵˮÄàÒ¤µÄµÍÎÂÓàÈÈ´ó×ڷſգ¬£¬£¬Ôì³ÉÄÜÔ´µÄÑÏÖØÆÌÕÅ£¬£¬£¬Í¬Ê±Ò²ÎÛȾÁËÇéÐΡ£

jbo¾º²©¿ª·¢µÄÖÖÖÖÓàÈȹøÂ¯£¬£¬£¬¿ÉÒÔÔÚÉÏÊöÁìÓò´óÏÔÉíÊÖ£¬£¬£¬Ê¹ÓÃÉú²úÀú³ÌÖеŤÒÕÓàÈȱ¬·¢¸ßθßѹÕôÆû·¢µç£¬£¬£¬´Ó¶ø½µµÍµçºÄ£¬£¬£¬ïÔÌ­Éú²ú±¾Ç®£¬£¬£¬Îª¿Í»§ÆóÒµ´´Á¢ÓÅÒìµÄ¾­¼ÃÐ§ÒæºÍÉç»áÐ§Òæ¡£

Å侰ͼ
¼õÁ¿»¯¡¢ÔÙʹÓá¢×ÊÔ´»¯

2021Äê¹ú¼Ò·¢¸Äίӡ·¢¡¶¡°Ê®ËÄÎ塱ѭ»·¾­¼ÃÉú³¤ÍýÏë¡·£¬£¬£¬Ã÷È·½«¡°Íƽø¹¤ÒµÓàѹÓàÈÈ¡¢·ÏË®·ÏÆø·ÏÒºµÄ×ÊÔ´»¯Ê¹Ó㬣¬£¬ÊµÏÖÂÌÉ«µÍ̼ѭ»·Éú³¤£¬£¬£¬Æð¾¢Íƹ㼯Öй©Æø¹©ÈÈ¡±×÷ÎªÖØµãʹÃü¡£

ÓàÈȹøÂ¯È«Ïµ²úÆ·

Waste heat boiler whole series of products

¾­µä¯ÐÍ

ÏîÄ¿ÏÖ³¡

The site of the project

רÀû¹øÂ¯ÏÖ³¡
ÔÆÄÏ98¶ÖÌ¼ËØÒ¤ÓàÈȹøÂ¯
jbo¾º²©ÓàÈȹøÂ¯ÏîĿͼ °²»Õ½ðºÌ75¶ÖÈý·Ï»ìȼÓàÈȹøÂ¯ÏîÄ¿
ºÓ±±·ÉÁúË®ÄàÒ¤µÍÎÂÓàÈÈ·¢µç¹øÂ¯ÏîÄ¿
jbo¾º²©ÓàÈȹøÂ¯ÏîĿͼ
°²ÄÜ24*6¶Ö/ʱΣ·ÏÓàÈȹøÂ¯ÏîÄ¿

¿Í»§¾Û½¹

Customer focus

ÓàÈȹøÂ¯°Ù¿Æ
ÓàÈȹøÂ¯¿´·¨
ÓëͨÀý¹¤Òµ¹øÂ¯²î±ð
ÓàÈȹøÂ¯µÄÊÂÇéÔ­Àí
ÓàÈȹøÂ¯

ÓàÈȹøÂ¯×ÜÌåÀ´½²Ö»ÓС°¹ø¡±Ã»ÓС°Â¯¡±¡£ËüÊÇʹÓÃÓàÈȽéÖÊ£¨ÖÖÖÖ¹¤ÒµÀú³ÌÖÐµÄ·ÏÆø¡¢·ÏÎï»ò·ÏÒº£©Öк¬ÓеÄÏÔÈÈ»ò£¨ºÍ£©¿ÉȼÎïÖÊȼÉպ󱬷¢µÄÈÈÁ¿£¨ÐëҪʱ¿É¼Ó²¹È¼£©£¬£¬£¬ÓëÑ̵À£¨°²ÅÅÔÚÑ̵ÀÖУ©µÄÊÜÈÈÃæ¾ÙÐÐÈȽ»Á÷£¬£¬£¬±¬·¢ÕôÆû»òÈÈË®µÄ¹øÂ¯£¬£¬£¬Æä½á¹¹ÀàËÆÓÚË®¹Üʽ»ò¹ø¿Çʽ¹øÂ¯¡£

Óà
ÈÈ
ȯ
ÊÕ
¹ø
¯
Ò»°ãûÓÐȼÁÏȼÉÕ×°Ö㨳ý·ÇÓв¹È¼ÐèÇó£© Ò»Ð©Î¶ȽÏÁ¿¸ßµÄÑÌÆøµÈ½éÖÊÀ´¼ÓÈÈË® ÈÈÔ´ÊÇʹÓù¤ÒµÈ¼ÉÕµÄÓàÈÈ·ÏÈÈ (¹¤ÒµÂ¯µÄȼÉÕÎÂ¶È½Ï¸ß·ÏÆøÓàÈÈÔÙ´ÎʹÓÃ) ½á¹¹¼òÆÓ ÏÖÔÚÓ¦Óý϶àµÄÊÇ Ö±Í¨Ê½ÓàÈȹøÂ¯ ѹÁ¦¡¢Ë®Î»¡¢Î¶ȵÈÈÝÒ׿ØÖÆ ÓÉÓÚȼÉÕ¿ÉÒÔ¿ØÖÆ Ò»°ãÊǹ¤ÒµÂ¯µÄÅäÌ××°±¸ Ҫ˳ӦÓÚÖ÷¹¤ÒÕµÄÐèÇó ²»¿ÉÓ°ÏìÖ÷¹¤ÒÕµÄÔËÐÐ
³£
ѹ
¹¤
Òµ
¹ø
¯
ÐèҪȼÉÕ×°Öà ºÃ±ÈȼÉÕ»ú£¬£¬£¬»òÕ߯ÅÅµÈ ÈÈÔ´ÊÇʹÓýéÖÊȼÉÕ( ú¡¢ÓÍ¡¢È¼ÆøµÈ ) »ñµÃ ¹¤Òµ¹øÂ¯ÖÖÀà¶à ½á¹¹ÖØ´ó ¸¨Öú×°±¸½Ï¶à ÔËÐвÎÊý²»Ò׿ØÖÆµÄ ÔÚÔËÐÐÖÐÓàÈȹøÂ¯µÄÈÈÔ´ÊÇËæ ¹¤ÒµÂ¯µÄȼÉÕÖÜÆÚ¶ø×ª±ä Ö÷ÒªÓÃÓÚ¹©ÆøºÍÅäÌׯûÂÖ»ú·¢µçÓõÈ
ÓàÈȹøÂ¯µÄÊÂÇéÔ­Àí

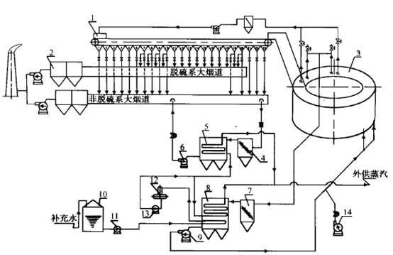
ȼÓÍ¡¢È¼Æø¡¢È¼Ãº¡¢È¼ÉúÎïÖʲú¸ßÎÂÑÌÆøÊÍ·ÅÈÈÁ¿£¬£¬£¬¸ßÎÂÑÌÆøÏȽøÈë¯ÌÅ£¬£¬£¬ÔÙ½øÈëǰÑÌÏäµÄÓàÈȽÓÄÉ×°Ö㬣¬£¬½Ó׎øÈëÑÌ»ð¹Ü£¬£¬£¬×îºó½øÈëºóÑÌÏäÑ̵ÀÄÚµÄÓàÈȽÓÄÉ×°Ö㬣¬£¬¸ßÎÂÑÌÆøÄð³ÉµÍÎÂÑÌÆø¾­ÑÌ´ÑÅÅÈë´óÆø¡£¹¤ÒµÂ¯Ò¤ÓõÄÓàÈȹøÂ¯£¬£¬£¬Ò»°ãʹÓÃÒý·ç»ú½«ÅÅÆøÅÅÍù´óÆø£»£»£»¶¯Á¦»úеºÍ»¯¹¤Éú²úÀú³ÌÓõÄÓàÈȹøÂ¯£¬£¬£¬ÔòÒÀÀµ½øÆø×ÔÉíµÄѹÁ¦Ê¹Ö®Í¨¹ýÓàÈȹøÂ¯£¬£¬£¬²¢ÅÅÍù´óÆø»ò½øÈëÏÂÒ»µÀ¹¤ÒÕ×°Öá£

1¡ªÉÕ½á»ú; 2¡ªÖ÷µç³ý³¾Æ÷; 3¡ª»·Àä»ú; 4¡ªÖ÷ɨ³ý³¾Æ÷; 5¡ªÖ÷ÅÅÓàÈȹøÂ¯;6¡ªÖ÷ÅÅÒý·ç»ú; 7¡ª»·Àä³ý³¾Æ÷;8¡ª»·ÀäÓàÈȹøÂ¯; 9¡ª»·ÀäÒý·ç»ú; 10¡ª´¢Ë®Ïä;11¡ªÔö²¹Ë®±Ã; 12¡ª³ýÑõÆ÷; 13¡ª¹øÂ¯¸øË®±Ã; 14¡ª±¸Ó÷ç»ú

ÓàÈȹøÂ¯ÔËÐбê×¼
ÓàÈȹøÂ¯ÔËÐбê×¼
ÕôÆûÆ·ÖÊÒªÇó

°´GB/T28056-2011¡¶Ñ̵ÀʽÓàÈȹøÂ¯Í¨ÓÃÊÖÒÕÌõ¼þ¡·»®¶¨

ûÓйýÈÈÆ÷µÄ¹øÂ¯£¬£¬£¬Æä±¥ºÍÕôÆûʪ¶È

Ë®¹Üʽ¹øÂ¯¡Ü3% ¹ø¿Çʽ¹øÂ¯¡Ü4%

ÓйýÈÈÆ÷µÄ¹øÂ¯£¬£¬£¬¹ýÈÈÆ÷Èë¿Ú±¥ºÍÕôÆûʪ¶È¡Ü1%

¹¤ÒµÓùøÂ¯£¬£¬£¬¹ýÈÈÕôÆûº¬ÑÎÁ¿²»Áè¼Ý0.5mg/kg

¹ýÈÈÕôÆûζȡæ
Îó²î¹æÄ£¡æ
¡Ü300
+30 -20
£¾300~350
+20 -20
£¾350~400
+10 -20
£¾400~450
+10 -15
£¾450
+5 -10
ÓàÈȹøÂ¯Õþ²ßÒ»ÀÀ

¡°Ì¼´ï·å¡¢Ì¼Öк͡±¡£Ï°×ÜÊé¼ÇÔÚ 2020 Äê 9 ÔÂÊ×´ÎÌá³ö¡°Ì¼´ï·å¡¢Ì¼Öк͡±µÄ¿´·¨£»£»£»10ÔÂ22ÈÕ£¬£¬£¬ÖйúÐû²¼Á¦ÕùÓÚ2030ÄêǰʵÏÖ̼·åÖµ£¬£¬£¬Æð¾¢ÕùÈ¡2060ÄêǰʵÏÖ̼Öк͡£

1.¡ª¡ª2021Äê7Ô¹ú¼Ò·¢¸Äί¿ËÈÕÓ¡·¢¡¶¡°Ê®ËÄÎ塱ѭ»·¾­¼ÃÉú³¤ÍýÏë¡·£¬£¬£¬Ã÷È·½«¡°Íƽø¹¤ÒµÓàѹÓàÈÈ¡¢·ÏË®·ÏÆø·ÏÒºµÄ×ÊÔ´»¯Ê¹Ó㬣¬£¬ÊµÏÖÂÌÉ«µÍ̼ѭ»·Éú³¤£¬£¬£¬Æð¾¢Íƹ㼯Öй©Æø¹©ÈÈ×÷ÎªÖØµãʹÃü¡£

2.¡ª¡ª2021Äê3Ô£¬£¬£¬¡¶¹úÃñ¾­¼ÃºÍÉç»áÉú³¤µÚÊ®ËĸöÎåÄêÍýÏëºÍ2035ÄêÔ¶¾°Ä¿µÄ¸ÙÒª¡·Ìá³ö£¬£¬£¬Éú±¬·¢ÑÄ·½Ê½ÂÌɫתÐÍЧ¹ûÏÔÖø£¬£¬£¬ÄÜÔ´×ÊÔ´ÉèÖÃÔ½·¢ºÏÀí¡¢Ê¹ÓÃЧÂÊ´ó·ùÌá¸ß£¬£¬£¬µ¥Î»º£ÄÚÉú²ú×ÜÖµÄÜÔ´ÏûºÄºÍ¶þÑõ»¯Ì¼ÅÅ·Å»®·Ö½µµÍ13.5%¡¢18%£¬£¬£¬Ö÷ÒªÎÛȾÎïÅÅ·Å×ÜÁ¿³ÖÐøïÔÌ­¡£¼á¾ö×èÖ¹¸ßºÄÄÜ¡¢¸ßÅÅ·ÅÏîĿäĿÉú³¤£¬£¬£¬Íƶ¯ÂÌɫתÐÍʵÏÖÆð¾¢Éú³¤¡£×³´ó½ÚÄÜ»·±£¡£¡¢Çå½àÉú²úµÈ¹¤Òµ¡£Íƶ¯ÃºÌ¿µÈ»¯Ê¯ÄÜÔ´Çå½à¸ßЧʹÓ㬣¬£¬Íƽø¸ÖÌú¡¢Ê¯»¯¡¢½¨²ÄµÈÐÐÒµÂÌÉ«»¯Ë¢Ð¡£

3.¡ª¡ª2021Äê2Ô£¬£¬£¬¹úÎñÔºÐû²¼ÁË¡¶¹ØÓÚ¼ÓËÙ½¨É轡ȫÂÌÉ«µÍ̼ѭ»·Éú³¤¾­¼ÃϵͳµÄÖ¸µ¼Òâ¼û¡·£¬£¬£¬Ìá³ö¼ÓËÙʵÑé¸ÖÌú¡¢Ê¯»¯¡¢»¯¹¤¡¢ÓÐÉ«¡¢½¨²Ä¡¢·ÄÖ¯¡¢ÔìÖ½¡¢Æ¤¸ïµÈÐÐÒµÂÌÉ«»¯Ë¢Ð¡£

4.¡ª¡ª2020Äê12Ô£¬£¬£¬¹ú¼ÒÉú³¤Ë¢ÐÂί¡¢²ÆÎñ²¿µÈ²¿·ÖÐû²¼¡¶¹ØÓÚÕûÀí¹æ·¶³ÇÕò¹©Ë®¹©µç¹©Æø¹©Å¯ÐÐÒµÊÕ·Ñ´Ù¾ÙÐÐÒµ¸ÕÖÊÁ¿Éú³¤µÄÒâ¼û¡·£¬£¬£¬Ìá³ö£º£º£º¶ÔÓàÈÈ¡¢Óàѹ¡¢ÓàÆø×Ô±¸µç³§£¬£¬£¬¼ÌÐø¼õÃâϵͳÓ÷Ñ£¬£¬£¬×Ô2021Äê3ÔÂ1ÈÕÆðʵÑé¡£

5.¡ª¡ª2020Äê10Ô£¬£¬£¬¹¤ÐŲ¿Ðû²¼¡¶¹ú¼Ò¹¤Òµ½ÚÄÜÊÖÒÕ×°±¸ÍƼöĿ¼£¨2020£©¡·£¬£¬£¬½«¶àÏîÓàÈÈÓàѹ½ÚÄÜË¢ÐÂÊÖÒÕÁÐÎªÍÆ¼ö¹¤Òµ½ÚÄÜÊÖÒÕ¡£

6.¡ª¡ª2019Äê3Ô£¬£¬£¬·¢¸ÄίÐû²¼¡¶ÂÌÉ«¹¤ÒµÖ¸µ¼Ä¿Â¼£¨2019Äê°æ£©¡·£¬£¬£¬ÂÌÉ«¹¤Òµ°üÀ¨ÓàÈÈÓàѹװ±¸ÖÆÔì¡£

7.¡ª¡ª2017Äê10Ô£¬£¬£¬¹¤ÐŲ¿Ðû²¼¡¶¹¤ÒµÒªº¦¹²ÐÔÊÖÒÕÉú³¤Ö¸ÄÏ£¨2017Ä꣩¡·£¬£¬£¬Ìá³ö£º£º£º¸ÖÌúÖÆÔìÁ÷³ÌÓàÈȼõÁ¿»¯ÓëÉî¶È»¯Ê¹ÓÃÊÖÒÕÖ÷ÒªÊÖÒÕÄÚÈÝ£º£º£º½¹Â¯ÑÌÆøÓàÈÈõè¾¶¼¶Ê¹ÓÃÊÖÒÕ¡¢»ÄÃºÆøÓàÈȽÓÄÉ·¢µçÊÖÒÕµÈÓàÈȽÓÄÉÊÖÒÕ¡£

8.¡ª¡ª2017Äê4Ô£¬£¬£¬¹¤ÐŲ¿Ðû²¼¡¶¹ØÓÚÍÆ¼ö2017Ä깤ҵ½ÚÄÜÓëÂÌÉ«Éú³¤Öصã½è´ûÏîÄ¿µÄ֪ͨ¡·£¬£¬£¬Ìá³ö£º£º£ºÖ§³Ö¹¤ÒµÆóҵʹÓÃµÍÆ·Î»ÓàÈÈÏò³ÇÕòסÃñ¹©Èȹ¤³Ì¡£

9.¡ª¡ª2016Äê7Ô£¬£¬£¬¹¤ÐŲ¿Ðû²¼¡¶¸ßЧ½ÚÄÜ»·±£¹¤Òµ¹øÂ¯¹¤Òµ»¯ÊµÑé·½°¸¡·¡£¡£¡¶·½°¸¡·Ö¸³ö£¬£¬£¬ÎªÂäʵ¡¶ÖйúÖÆÔì2025¡·£¬£¬£¬Íƶ¯ÂÌɫ֯ÔìºÍÖÇÄÜÖÆÔ죬£¬£¬Öƶ©²¢ÊµÑé¸ßЧ½ÚÄÜ»·±£¹¤Òµ¹øÂ¯¹¤Òµ»¯ÊµÑé·½°¸£¬£¬£¬ÖÜÈ«ÌáÉý¹¤Òµ¹øÂ¯ÏµÍ³ÄÜЧˮƽºÍ×°±¸Ë®Æ½£¬£¬£¬Ôö½ø¹¤Òµ¹øÂ¯¹¤Òµ×ªÐÍÉý¼¶£¬£¬£¬Íƽø¹©Ó¦²à½á¹¹ÐÔˢУ¬£¬£¬ÊµÏÖ½ÚÄܼõÅÅ£¬£¬£¬¸ÄÉÆÇéÐÎÖÊÁ¿¡£

¡¶·½°¸¡·Ö¸³ö£¬£¬£¬µ½2020Äêµ×£¬£¬£¬¹¥¿ËÒ»Åú¸ßЧ½ÚÄÜ»·±£¹¤Òµ¹øÂ¯Òªº¦¹²ÐÔÊÖÒÕ£¬£¬£¬ÅàÓýÒ»Åú¸ßЧ½ÚÄÜ»·±£¹¤Òµ¹øÂ¯ÖÆÔì»ùµØ£¬£¬£¬ÍƹãÒ»Åú¸ßЧ½ÚÄÜ»·±£¹¤Òµ¹øÂ¯²úÆ·£¬£¬£¬Öƶ©Ò»ÅúÏà¹Ø¹ú¼Ò±ê×¼£¬£¬£¬Ì½Ë÷½¨ÉèÑз¢¡¢¹¤³ÌÓ¦ÓÃÓëÊÖÒÕ·þÎñÓÚÒ»ÌåµÄ¸ßЧ½ÚÄÜ»·±£¹¤Òµ¹øÂ¯ÏÏû³Á¢ÒìÖÐÐĺÍרҵ»¯ÔËÐзþÎñÐÂģʽ¡£¸ßЧ½ÚÄÜ»·±£¹¤Òµ¹øÂ¯Êг¡Õ¼ÓÐÂÊ´ï60%ÒÔÉÏ£¬£¬£¬ÀÛ¼ÆÍƹã¸ßЧ½ÚÄÜ»·±£¹¤Òµ¹øÂ¯100ÍòÕô¶Ö¡£

¡ª¡ª2016Äê6Ô£¬£¬£¬¹¤ÐŲ¿Ðû²¼¡¶¹¤ÒµÂÌÉ«Éú³¤ÍýÏë¡·£¬£¬£¬Ö¸³ö£º£º£ºÉú³¤ÓàÈÈÓàѹ¸ßЧ½ÓÄÉʹÓá£ÔÚ×Ô±¸µç³§ÊµÑéÑÌÆøÏµÍ³ÓàÈÈÉî¶È½ÓÄÉʹÓᢳ¬ÁÙ½ç»ìÏý¹¤Öʸ߲ÎÊýÒ»Ì廯ѭ»··¢µçµÈÊÖÒÕˢС£Íƹã¿óÈȯ¸ßÎÂÑÌÆø¾»»¯½ÓÄÉʹÓá¢Ò±½ðÓàÈÈÓàѹÄÜÁ¿½ÓÄÉͬÖá»ú×éÓ¦Óá¢ÂݸËÅòÕͶ¯Á¦Çý¶¯µÈÊÖÒÕ¡£µ½2020 Ä꣬£¬£¬ÖÐµÍÆ·Î»ÓàÈÈÓàѹʹÓÃÂʵִï 80%¡£ÃºÌ¿Çå½à¸ßЧʹÓ᣽¹»¯¡¢Ãº»¯¹¤ÐÐÒµÖØµãÍÆ¶¯²úÆ·½á¹¹ÓÅ»¯£¬£¬£¬¼Ó´ó×ÊÔ´¼Ó¹¤×ª»¯Éî¶È£¬£¬£¬ÍƹãÕûÌåÃºÆøÁªºÏÑ­»··¢µçÊÖÒÕ£¨IGCC£©¡¢½¹Â¯ÃºÆøÖƺϳɰ±¡¢¼×´¼»ò×ÔÈ»Æø¼°Ãº·ÛÆøÁ÷´²¼ÓÑ¹Æø»¯µÈÊÖÒÕ¡£¹¤Òµ¹øÂ¯ÓÅÏÈʵÑé¸ßЧ½ÚÄÜÊÖÒÕˢлòÇå½àÄÜÔ´Ìæ»»¡£¹¤ÒµÒ¤Â¯ÖصãÍÆ½øÈ«£¨¸»£©ÑõȼÉÕ¡¢ÐîÈÈʽȼÉÕ¡¢È¼ÁÏÌæ»»¼°ÓàÈÈʹÓõÈÊÖÒÕˢС£

¡ª¡ª2015Äê5Ô£¬£¬£¬¹úÎñÔºÓ¡·¢¡¶ÖйúÖÆÔì2025¡·£¬£¬£¬Ìá³ö£º£º£º¼Ó´óÏȽø½ÚÄÜ»·±£ÊÖÒÕ¡¢¹¤ÒÕºÍ×°±¸µÄÑз¢Á¦¶È£¬£¬£¬¼ÓËÙÖÆÔìÒµÂÌɫˢÐÂÉý¼¶£»£»£»Æð¾¢ÍÆÐеÍ̼»¯¡¢Ñ­»·»¯ºÍ¼¯Ô¼»¯£¬£¬£¬Ìá¸ßÖÆÔìÒµ×ÊԴʹÓÃЧÂÊ£»£»£»Ç¿»¯²úÆ·È«ÉúÃüÖÜÆÚÂÌÉ«ÖÎÀí£¬£¬£¬Æð¾¢¹¹½¨¸ßЧ¡¢Çå½à¡¢µÍ̼¡¢Ñ­»·µÄÂÌɫ֯Ôìϵͳ¡£

×é֯ʵÑé¹Å°åÖÆÔìÒµÄÜЧÌáÉý¡¢Çå½àÉú²ú¡¢½ÚË®ÖÎÎÛ¡¢Ñ­»·Ê¹ÓõÈרÏîÊÖÒÕˢС£¿ªÕ¹ÖØ´ó½ÚÄÜ»·±£¡£¡¢×ÊÔ´×ÛºÏʹÓá¢ÔÙÖÆÔì¡¢µÍ̼ÊÖÒÕ¹¤Òµ»¯Ê÷Ä£¡£

ÓàÈȹøÂ¯Ð§ÒæÆÊÎö

360©O

+

50-60¶ÖµÄÓàÈȹøÂ¯

+

10Õ×Íߵķ¢µç»ú×é

ÔÚ¸ÖÌúÆóÒµµÄÍ⹺ÄÜÔ´±¾Ç®ÖУ¬£¬£¬ÃºÊÇ×îÖ÷ÒªµÄ£¬£¬£¬Æä´Î¾ÍÊǵçÁ¦¡£Ò»Ì¨360ƽ·½Ã×µÄÉÕ½á»úÅäÌ×50-60¶ÖµÄÓàÈȹøÂ¯¡¢10Õ×Íߵķ¢µç»ú×飬£¬£¬Ã¿Äê¿ÉÒÔʵÏÖÕý³£·¢µç7000Сʱ£¬£¬£¬½«¼«´óïÔÌ­¸ÖÆóµÄÍ⹺µç¹æÄ£¡£¡£

ÏÖÔÚÓàÈÈ·¢µç½ÏºÃµÄ¸Ö³§£¬£¬£¬×Ô¾õµçÕ¼±ÈÒѾ­¿ÉÒÔµÖ´ï70%£¬£¬£¬Ò»°ãµÄÒ²ÔÚ40%×óÓÒ¡£Í⹺µçïÔÌ­£¬£¬£¬¸ÖÆóµÄÄÜÔ´±¾Ç®×ÔÈ»¾Í½µµÍÁË¡£ËäÈ»¸ÖÌúÒµµÍÃÔ£¬£¬£¬¿ÉÊÇȴûÓÐÓ°ÏìÆóÒµÔÚ½ÚÄÜÁìÓòµÄͶ×Ê¡£Ïà·´£¬£¬£¬ÕýÊÇÓÉÓÚÀûÈó¿Õ¼äÓÐÏÞ£¬£¬£¬¸ÖÆó²Å»á»¨¸ü¶à¾«ÉñÓÃÓÚ½ÚÄÜͶÈë¡¢½µµÍ±¾Ç®¡£

ÓàÈȹøÂ¯Ð§ÒæÆÊÎö

ÿÄê¿ÉÒÔʵÏÖÕý³£·¢µç7000Сʱ

¼«´óïÔÌ­¸ÖÆóµÄÍ⹺µç¹æÄ£

ÓÐÓýµµÍ±¾Ç®£¬£¬£¬ÆóÒµÀûÈóÍ»Ôö

ËûÃǵÄÅäºÏÑ¡Ôñ

Their common choice

ÏÖÔÚ£¬£¬£¬jbo¾º²©²úÆ·ÏúÁ¿³ÖÐøÔöÌí£¬£¬£¬Êг¡Õ¼ÓÐÂÊÎȲ½ÌáÉý£»£»£»ÎÞÂÛÂÄÀúÔõÑùµÄÊг¡¹¥»÷£¬£¬£¬È´Ê¼ÖÕ²»Î··çÓ꣬£¬£¬³¤ÇýÖ±ÈëÎÒ¹ú¸÷´óµØÇøÊг¡£¬£¬£¬×ݺᱼÅܼä»îÁ¦ÕÃÏÔ¡£

×îа¸Àý
ÁÉÄþ»ô½õ2*14t/hÌ¼ËØÓàÈȹøÂ¯ÏîÄ¿
Æì±õ¼¯ÍÅ12.4t/h²£Á§Ò¤ÓàÈȹøÂ¯ÏîÄ¿
ÔÆÄÏË÷ͨ98t/hÌ¼ËØÓàÈȹøÂ¯ÏîÄ¿
°²»Õ½ðºÌ
ÌïÔ­»¯¹¤49¶Ö/ʱÈý·Ï»ìȼÓàÈȹøÂ¯ÏîÄ¿
ɽ¶«ÌìÑô3*15¶Ö/Ê±Ì¼ËØÓàÈÈÑÌÆø½ÓÄɹøÂ¯ÏîÄ¿
ÂåÑô600t/d²£Á§Ò¤ÓàÈÈ·¢µç¹øÂ¯ÏîÄ¿
½ú¿ª»¯¹¤60¶ÖÈý·Ï»ìȼÓàÈȹøÂ¯ÏîÄ¿
ÁÉÄþ»ô½õ2*14t/hÌ¼ËØÓàÈȹøÂ¯ÏîÄ¿ÁÉÄþ»ô½õ
Æì±õ¼¯ÍÅ12.4t/h²£Á§Ò¤ÓàÈȹøÂ¯ÏîÄ¿¹ã¶«Æì±õ
ÔÆÄÏË÷ͨ98t/hÌ¼ËØÓàÈȹøÂ¯ÏîÄ¿ÔÆÄÏË÷ͨ
°²»Õ½ðºÌ°²»Õ½ðºÌ
ÌïÔ­»¯¹¤49¶Ö/ʱÈý·Ï»ìȼÓàÈȹøÂ¯ÏîÄ¿ºÓ±±ÌïÔ­
ɽ¶«ÌìÑô3*15¶Ö/Ê±Ì¼ËØÓàÈÈÑÌÆø½ÓÄɹøÂ¯ÏîĿɽ¶«ÌìÑô
ÂåÑô600t/d²£Á§Ò¤ÓàÈÈ·¢µç¹øÂ¯ÏîÄ¿ºÓÄÏÁúê»
½ú¿ª»¯¹¤60¶ÖÈý·Ï»ìȼÓàÈȹøÂ¯ÏîÄ¿ ºÓÄÏ¿ª·â
Ãâ·Ñ»ñÈ¡×îµÍ±¨¼Û Ãâ·Ñ»ñÈ¡×îµÍ±¨¼Û Ãâ·Ñ»ñÈ¡×îµÍ±¨¼Û

Ãâ·Ñ»ñÈ¡×îµÍ±¨¼Û

jbo¾º²©ÊÂÇéÖ°Ô±½«»áÔÚ24СʱÄÚÁªÏµÄú£¬£¬£¬ÇëÄú¼á³ÖÊÖ»úÁ÷ͨ¡£ÈôÊÇÐèÒªÆäËü·þÎñ£¬£¬£¬½Ó´ý²¦´ò·þÎñÈÈÏß400-839-1110

³£¼ûÎÊÌâ

Common problems

¿Í»§³£¼ûÎÊÌâ
×ÉѯÈÈÏß
ÔÚÏ߿ͷþ
¡¾ÍøÕ¾µØÍ¼¡¿
רÀûÐÍÓàÈȹøÂ¯¼ÛÇ®,ÔËÐбê×¼,¹ú¼ÒÕþ²ßºÍÐ§ÒæÆÊÎö